Prostory v budově B
1. nadzemní podlaží (přízemí)
V jižní části dvora je situována budova B, ve které je v 1. NP hala o rozloze 266 m2, s vlastním vchodem, s příslušenstvím a se samostatným vjezdem pro dodávkový automobil.
Součástí haly jsou další prostory – sklad a sociální zázemí – o celkové rozloze 33,8 m2.
Tato hala je zkolaudována jako prodejna spotřebního zboží a v současné době je pronajata.

Hala v přízemí budovy B (pohled 2)


Pro stažení: Půdorys haly v přízemí budovy B
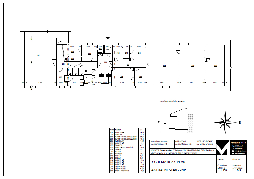
2. nadzemní podlaží
Ve 2. NP jsou rovněž prostory, které jsou pronajímány, a v současné době jsou obsazeny.
Prostory v budově C
1. nadzemní podlaží (přízemí)
Ve východní části areálu je situována budova C, ve které jsou prostory se samostatným vchodem, o celkové rozloze 155,8 m2 – hala 137,5 m2, kancelář 9,8 m2 a sociální zázemí 8,5 m2. Možnost využití jako prodejní, skladovací a výrobní prostory. Prostory jsou v této době pronajaty.

Pro stažení: Půdorys prostor v přízemí budovy C
2. nadzemní podlaží
Ve východní části areálu je situována budova C, v jejímž druhém nadzemním podlaží nabízíme k pronájmu haly, šatny a kanceláře.
Veškeré prostory v 2. NP budovy C jsou v současné době pronajaty.




Pro stažení: Půdorys prostor v 2. NP budovy C
Prostory v budově D
V severní části areálu je situována budova D, ve které v 1. NP nabízíme k pronájmu halu o rozloze 170,5 m2, se dvěma kancelářemi o rozloze 54,5 m2 a 12,8 m2, se sociálním příslušenstvím o rozloze 4 m2 a kuchyňkou.
Prostor disponuje vjezdem pro velký dodávkový automobil a je podsklepen.
Sklep (1. PP) má rozlohu 147 m2 a je vybaven nákladním výtahem.
Prostory v 1. NP této budovy jsou již pronajaty, včetně 1. PP (sklep) budovy D.




Pro stažení: Půdorys haly v budově D
Sklep (k pronájmu) pod halou v budově D

Pro stažení: Půdorys sklepa v budově D


